Casa semi indipendente Via Ritorto, Peveragno

Prezzo: € 210.000,00 Casa semi indipendente in VenditaRIF.: FZ011
Informazioni principali
Vendita
Casa semi indipendente
€ 210.000,00
250 m2
Via Ritorto, Peveragno
F
211.25 kWh/m2 anno
Descrizione

PEVERAGNO - VIA RITORTO, 22.

Nel comune di Peveragno, in via Ritorto, in posizione periferica ma comoda ai principali servizi del paese, proponiamo in vendita una villa libera su tre lati e sviluppata su più livelli, caratterizzata da ampi spazi e da una buona indipendenza abitativa.

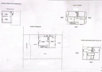
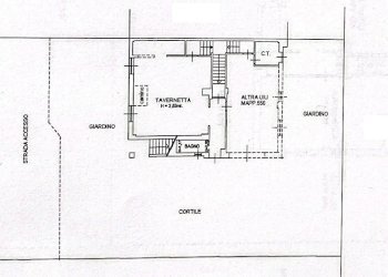
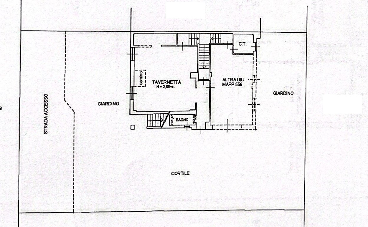
L’immobile si sviluppa a partire dal piano primo sotterraneo, dove sono presenti due ampie cantine ideali come locali di deposito. Al piano terreno si trovano un ampio box auto di 31 mq, un locale adibito a centrale termica e una spaziosa tavernetta dotata di angolo cottura e caminetto a legna, ambiente particolarmente adatto a momenti conviviali o a utilizzi multifunzionali. A servizio del piano è inoltre presente un piccolo bagno dotato di lavandino e sanitari. Il collegamento con il livello superiore avviene tramite due distinte scale interne in muratura.

Il primo piano ospita la zona abitativa principale ed è composto da un disimpegno che distribuisce gli ambienti, un salotto, una cucina abitabile, due camere da letto e un ampio bagno. La presenza di due balconi sui lati della casa garantisce una buona luminosità agli ambienti: uno è accessibile dalla cucina e da una delle camere, mentre il secondo è collegato alla seconda camera, al bagno e al salotto.

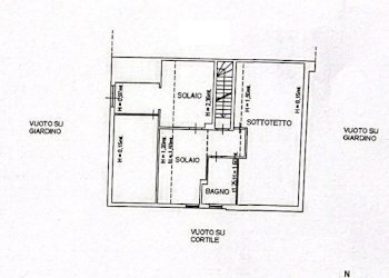
Proseguendo tramite scala interna si accede al secondo piano, dove è presente un ampio sottotetto suddiviso in due locali oltre a un bagno dotato di doccia, spazio che può essere utilizzato come area accessoria o di servizio a seconda delle esigenze.

La proprietà è completata da un cortile privato e da due porzioni di giardino, una collocata nella parte anteriore dell’abitazione e una, di dimensioni più generose, nella parte retrostante del fabbricato.

L’immobile risale alla metà degli anni Ottanta e si presenta in ottimo stato di conservazione. La struttura del tetto è in cemento armato, mentre gli infissi sono in legno con doppio vetro. Il riscaldamento è autonomo con radiatori alimentati da caldaia a gasolio e la produzione di acqua calda sanitaria è garantita da boiler elettrico. L’ottima esposizione al sole rende inoltre interessante la possibilità di valutare l’installazione di soluzioni impiantistiche a carattere ecosostenibile.

La soluzione rappresenta un’opportunità interessante per chi è alla ricerca di un’abitazione con buoni spazi interni ed esterni, un elevato grado di indipendenza e una posizione che consente di raggiungere comodamente i principali servizi del paese. L’immobile si distingue inoltre per un rapporto qualità-prezzo particolarmente favorevole nel contesto di riferimento.

PER QUALSIASI INFORMAZIONE NON ESITATE A CONTATTARCI. SIAMO DISPONIBILI A FAR VISIONARE L'IMMOBILE DAL LUNEDÌ ALLA DOMENICA.

Seguiteci sui social:
Facebook (https://www.facebook.com/GruppoMonvisoImmobiliare)
Twitter (https://twitter.com/GruppoMonviso)
Instagram (https://www.instagram.com/gruppomonvisoimmobiliare)

Altre informazioni
1
3
3
Abitabile
Autonomo
a radiatori
Gasolio
Assente
2
SI
SI
SI
Singolo
1
SI
SI
Tre
SI
Sud
SI
SI
Singolo
Su più livelli
4
1985
Ottimo
Libero
Doppio vetro / Legno
Agenzia di riferimento
Caraglio

via Roma 197 - 12023
Caraglio (CN)

Tel: 0171/301732

Contatta
Ho letto e accetto l'informativa sulla privacy.